Bauen im Außenbereich, Holz-Hybridbau, Einbaumöbel
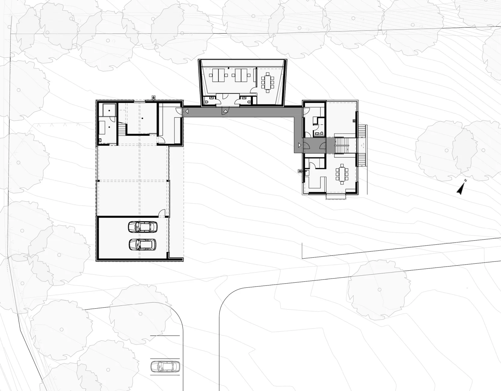
Drei Gebäudeteile gruppieren sich rund um einen zentralen Hofraum. Das Betriebsgebäude beherbergt Werkstatt, Garagen- und Lagerflächen sowie die Energiezentrale für das gesamte Anwesen. Es ist Ausgangspunkt für die Bewirtschaftung von gut 1.000 ha. Waldfläche in direkter Umgebung. Dieser Gebäudeteil erstreckt sich längs entlang der stark befahrenen Straße und schottet so den Hofraum ab. Das Wohngebäude für den Betriebsleiter ist rückversetzt, dem Wald zugewandt platziert und als Holzbau auf einem massiven Kellergeschoss konzipiert. Beide Gebäudeteile tragen verschieden geneigte Satteldächer mit Stehfalzdeckung. Talseitig wird der Hof durch ein aufgeständertes Verwaltungsgebäude geschlossen, das auf einer massiv ausgeführten Teilunterkellerung ebenfalls in Holzbauweise ausgeführt wurde. Dessen Dachfläche wird durch ein flach geneigtes und intensiv begrüntes Pultdach gebildet und von innen erlauben großflächige Verglasungen einen weitläufigen und eindrucksvollen Panoramablick über die Landschaft.














