Erweiterung, 1x KiGa, Holzbau, Einbaumöbel + Energetische Sanierung und Instandsetzung des best. Schulhauses
Förderung: FAG-Förderung (gem. Art. 10 BayFAG), Investitions-Programm "Kinderbetreuungsfinanzierung" (2017-2020)
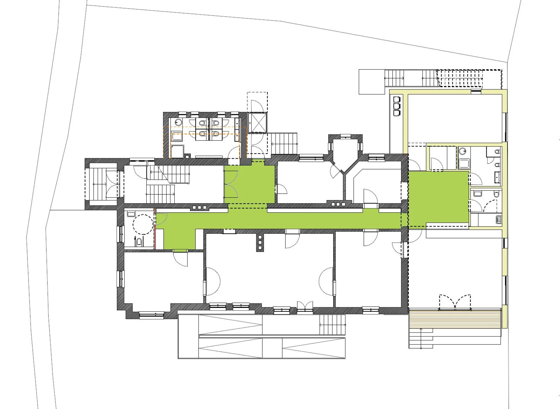
Nach der öffentlich geförderten Energetischen Sanierung des denkmalwürdigen alten Schulhauses wurden die im EG untergebrachten Räumlichkeiten zur Kinderbetreuung niveaugleich nach Osten hin erweitert. Der Entwurf beinhaltet die Nachrüstung einer Hubanlage am Eingangsbereich sowie einer Rampenanlage zum Garten
ermöglicht so die barrierefreie und integrative Nutzung der Einrichtung. Im Zentrum befindet sich der Spiel- und Garderobenflur, nordseitig der Ruheraum. Dem nach Süden ausgerichteten Gruppenraum wurde eine überdeckte Terrasse vorgelagert, die in Verbindung mit der Sitzstufenanlage auch als Bühne für Feste und Feierlichkeiten dienen kann.
Über die begrünte Dachfläche und die daran angeschlossene Treppe wird nun der erforderliche Zweite Rettungsweg für die nach wie vor öffentlich genutzten Räumlichkeiten im Obergeschoss geführt.













